WEATHER ALERT

‘Memory care’ facility in works Edison Properties plans specialized home for seniors with cognition problems

Winnipeg apartment developer Edison Properties is preparing to enter the elder care business, planning an assisted-living facility for seniors, with a special unit for those who have cognition-impaired conditions such as Alzheimer’s disease.

Read this article for free:

or

Already have an account? Log in here »

To continue reading, please subscribe:

Monthly Digital Subscription

$1 per week for 24 weeks*

  • Enjoy unlimited reading on winnipegfreepress.com
  • Read the E-Edition, our digital replica newspaper
  • Access News Break, our award-winning app
  • Play interactive puzzles

*Billed as $4.00 plus GST every four weeks. After 24 weeks, price increases to the regular rate of $19.95 plus GST every four weeks. Offer available to new and qualified returning subscribers only. Cancel any time.

Monthly Digital Subscription

$4.99/week*

  • Enjoy unlimited reading on winnipegfreepress.com
  • Read the E-Edition, our digital replica newspaper
  • Access News Break, our award-winning app
  • Play interactive puzzles

*Billed as $19.95 plus GST every four weeks. Cancel any time.

To continue reading, please subscribe:

Add Free Press access to your Brandon Sun subscription for only an additional

$1 for the first 4 weeks*

  • Enjoy unlimited reading on winnipegfreepress.com
  • Read the E-Edition, our digital replica newspaper
  • Access News Break, our award-winning app
  • Play interactive puzzles
Start now

No thanks

*Your next subscription payment will increase by $1.00 and you will be charged $16.99 plus GST for four weeks. After four weeks, your payment will increase to $23.99 plus GST every four weeks.

Hey there, time traveller!
This article was published 10/02/2020 (2198 days ago), so information in it may no longer be current.

Winnipeg apartment developer Edison Properties is preparing to enter the elder care business, planning an assisted-living facility for seniors, with a special unit for those who have cognition-impaired conditions such as Alzheimer’s disease.

The proposed facility would sit on an empty lot at 1475 Molson St. in Winnipeg’s northeastern Eaglemere neighbourhood, near the intersection of Chief Peguis Trail and Lagimodiere Blvd.

Edison is working with MMP Architects principal Robert Wrublowsky, who has spent the last five years studying environmental gerontology.

MMP ARCHITECTS
An artist’s rendering of the facility, which is proposed for 1475 Molson St. in Eaglemere, in northeast Winnipeg.
MMP ARCHITECTS An artist’s rendering of the facility, which is proposed for 1475 Molson St. in Eaglemere, in northeast Winnipeg.

He said he hopes the project will help fill what he describes as a void in Manitoba’s spectrum of elder-care options, explaining that some older Manitobans who can no longer live independently end up being placed in personal care homes designed for those with more serious conditions, diminishing their quality of life.

“You move from being somewhat independent into an environment where you’ve got company that you can no longer have conversations with,” said Wrublowsky.

Wrublowsky’s research has taken him to the U.S. and the U.K., where he’s found “an entire layer (of care) that’s missing in Manitoba. And that falls in between the supportive housing and personal care.”

That type of facility, known as “memory care” in the U.S., is what Wrublowsky envisions for the Edison project.

“It really came from the realization that the existing personal care home portfolio in the province is a very institutional-based model, and I experienced that personally with my own mother,” he said.

“I experienced that personally when my two daughters would volunteer at a personal care home that I designed, that I was actually quite proud of… But when you go hang out there and experience the life, I was really disappointed. It was like a two-by-four to the side of the head, saying, ‘We must do better.’”

Exact plans for the project have yet to be finalized, but Wrublowsky spoke about evidence-informed designs meant to improve quality of life for seniors who have cognitive impairment. That includes special “self-wardrobing closets” designed to help tenants make their own choices about what to wear and how to get dressed.

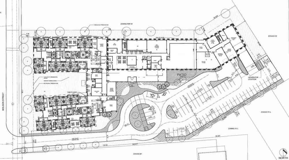
A drawing of the project is seen in documents presented to the East Kildonan-Transcona Community Committee in January. (City of Winnipeg)
A drawing of the project is seen in documents presented to the East Kildonan-Transcona Community Committee in January. (City of Winnipeg)

Other design elements could include discreet exits designed to dissuade wandering residents from leaving the secure section of the building, or chairs with armrests designed to help seniors pull themselves up on their own.

The current plan calls for 48 spots in the memory care facility, divided into four smaller households with 12 residents each.

Each household would include communal areas such as kitchens, dining rooms and living rooms, and residents would be cared for by 24-hour staff. Apartments on the floor above the memory care unit would be meant for spouses of memory-care tenants.

“So somebody in memory care has the ability to come into the elevator, come up to the third floor, spend the day with their spouse or vice-versa, and never leave a secure environment,” said Wrublowsky. “How cool is that?”

Another section of the proposed building would be a 147-unit assisted-living facility for seniors.

Like residents of the memory care unit, assisted-living tenants would have access to amenities such as a meal service. Tenants could even start off in the assisted-living section, then move to the memory care facility later in life.

Exact plans for the project have yet to be finalized, but Wrublowsky spoke about evidence-informed designs meant to improve the quality of life for seniors who have cognitive impairment. (City of Winnipeg)
Exact plans for the project have yet to be finalized, but Wrublowsky spoke about evidence-informed designs meant to improve the quality of life for seniors who have cognitive impairment. (City of Winnipeg)

Edison Properties vice-president Frank Koch-Schulte said seniors comprise a significant proportion of tenants in the company’s nearly 5,000 rental units across Winnipeg. Edison’s property managers often end up going above and beyond to help some of those older tenants, he said.

“They’re doing a lot of things that the typical building manager wouldn’t do, whether it’s calling family, helping them get back to their apartment when maybe they wander out, and those sorts of things,” said Koch-Schulte.

That inspired Edison to consider entering the care home business, he explained.

“Because that’s the next step, that’s where all of our tenants were going.”

Alzheimer Society of Manitoba CEO Wendy Schettler said the prospect of new housing options for Manitobans with cognitive impairments is exciting, especially when those homes offer the chance to keep couples living together.

“This is an aging population, and housing is really important, and we know the numbers of folks with dementia are going to increase,” said Schettler, adding that it’s also important for that housing to be affordable.

Other design elements could include discreet exits designed to dissuade wandering residents from leaving the secure section of the building, or chairs with armrests designed to help seniors pull themselves up on their own. (City of Winnipeg
Other design elements could include discreet exits designed to dissuade wandering residents from leaving the secure section of the building, or chairs with armrests designed to help seniors pull themselves up on their own. (City of Winnipeg

Koch-Schulte and Wrublowsky said Edison is finalizing the project’s design before seeking final approval from the city. Edison hopes to break ground this spring or summer. Completing the project could take from 18 to 24 months.

solomon.israel@freepress.mb.ca

@sol_israel

Report Error Submit a Tip